About  |  Projects  |  Press  |  Careers  |   Art  |   Contact

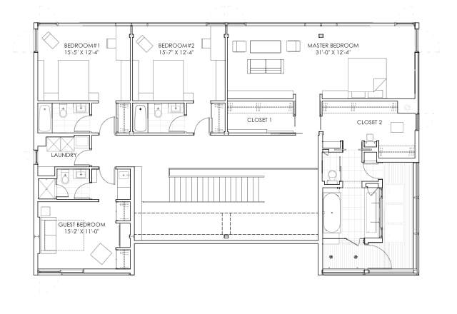
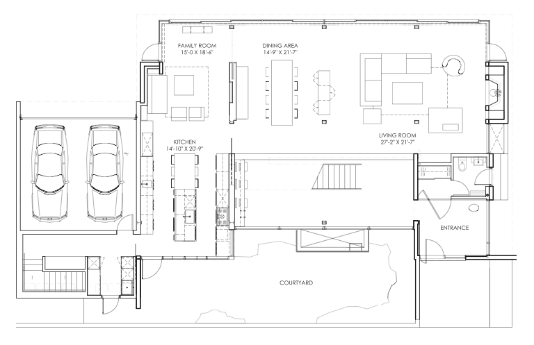
Seeff Adam Residence

UBC Endowment Lands, Vancouver



The 7500 sq ft residence was a take on the difference between Japanese and Western conceptions of space